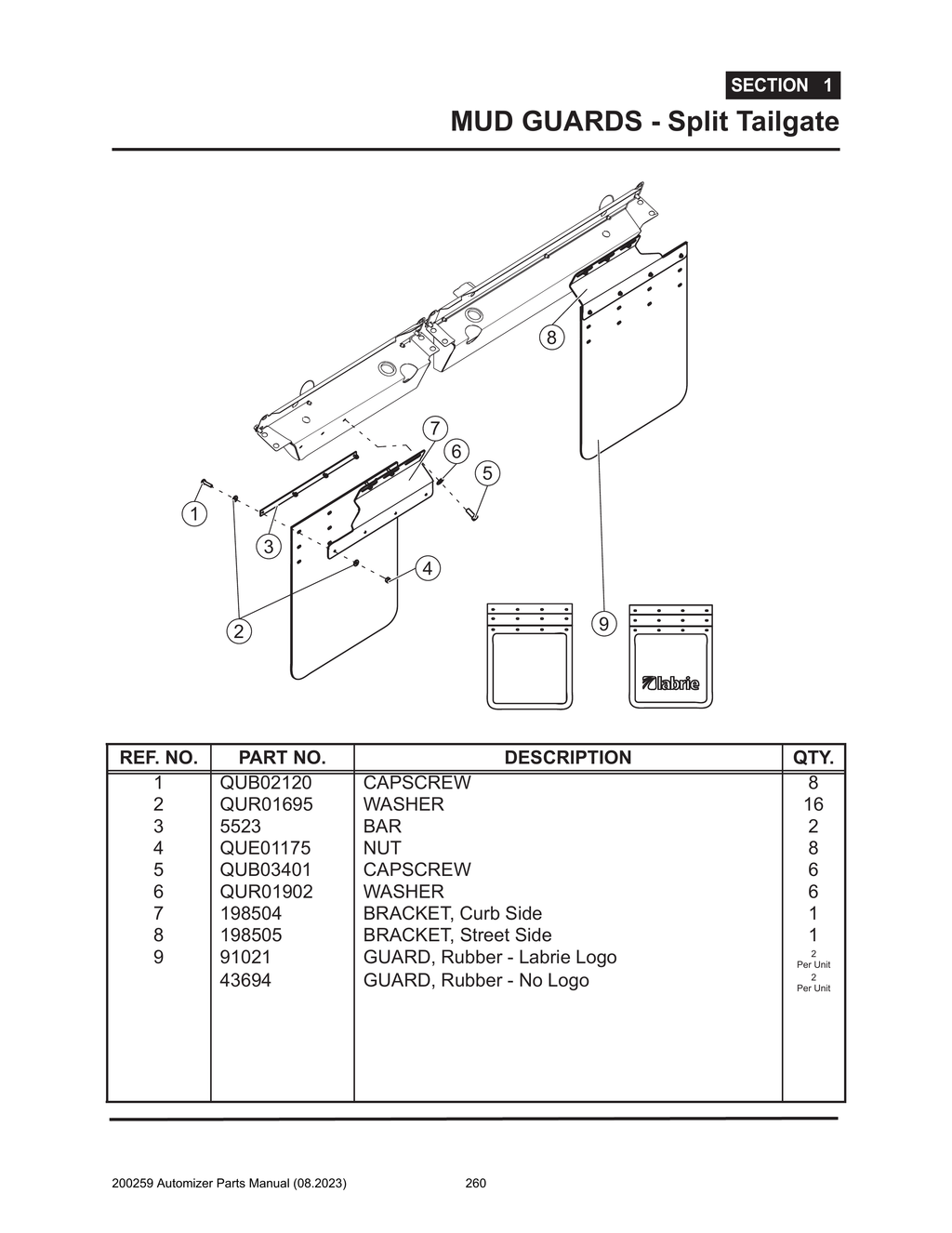
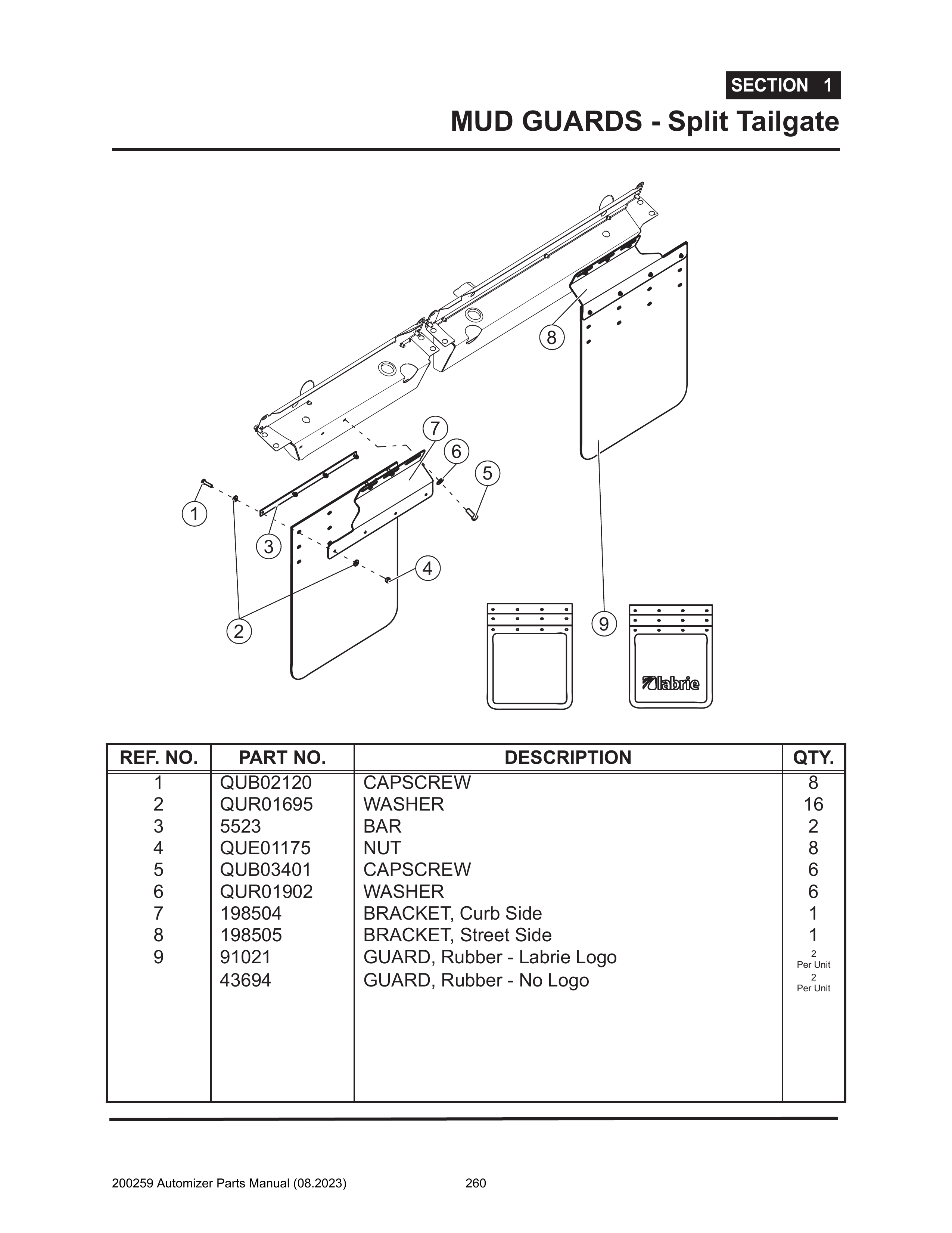
Automizer - PG 260 - Section 1 - MUD GUARDS - Split Tailgates 260

Automizer - PG 260 - Section 1 - MUD GUARDS - Split Tailgates 260

COMPONENTS

Select assembly
Automizer - PG 260 - Section 1 - MUD GUARDS - Split Tailgates 260
Fullscreen zoom
View all products
Automizer - PG 260 - Section 1 - MUD GUARDS - Split Tailgates 260